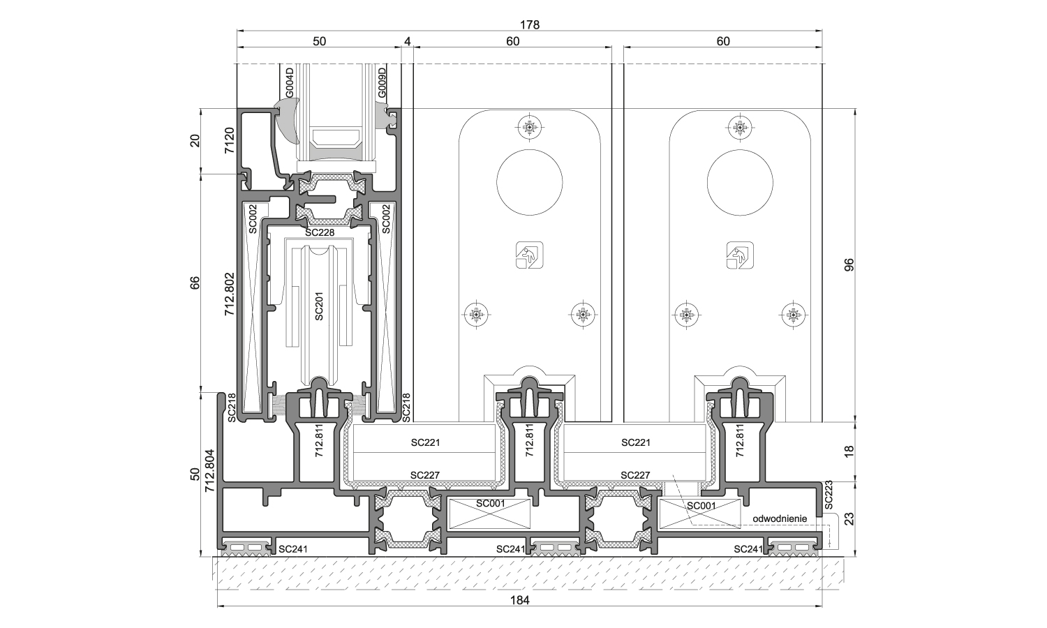
Thermisch geïsoleerd systeem bedoeld voor de constructie van externe hef-schuifelementen, bijvoorbeeld kozijnen voor balkons en loggia’s.
Kenmerkend
- nauwe aansluiting met andere Ponzio-systemen
- mogelijkheid om een structuur met een lage drempel te maken
- deurkozijnen: 2 – 4 sporen

